Torslanda - Björlanda

Hjälmavägen 188

Alla bilder

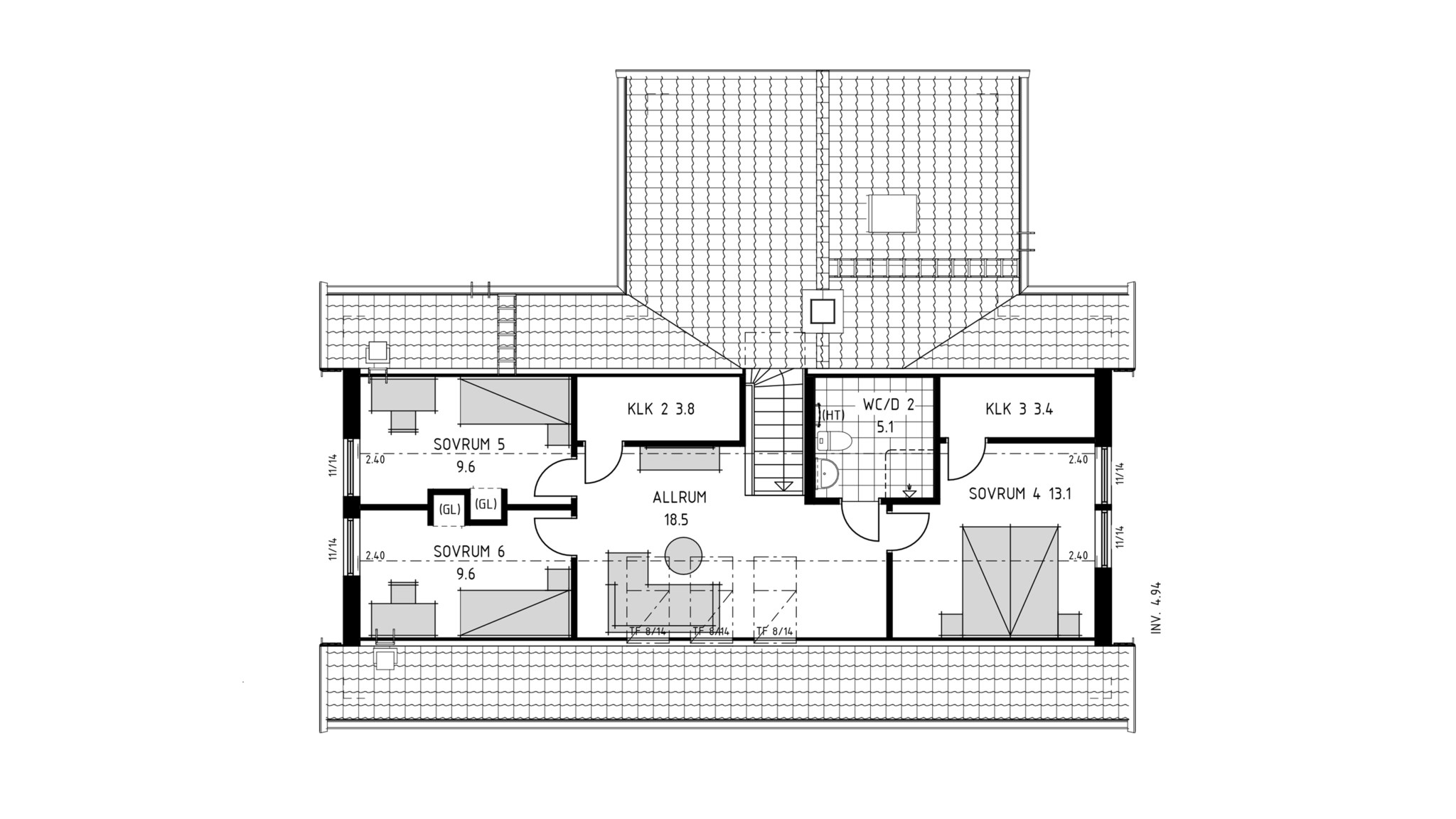
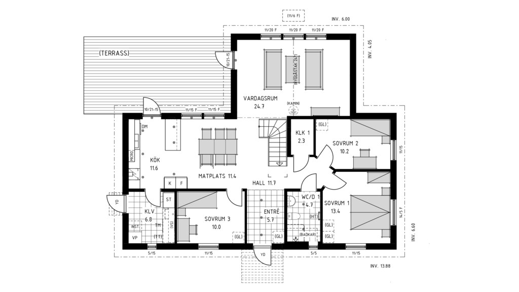
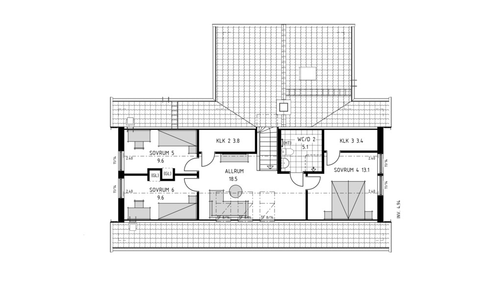
Kaxigt H-format enplanshus med barndel och föräldradel

6 775 000 kr 7 rok varav 4 sovrum 153 kvm 934 m² tomtarea

Nu har du chansen att förvärva en tomt med en nyproducerad villa från husleverantören Trivselhus/Movehome. Tomten ligger i ett naturnära område med vackert kulturlandskap och erbjuder en plan villatomt. Här planeras uppförandet av Move 109 – ett kaxigt enplanshus i H-form med tydlig uppdelning mellan barn- och föräldradel. I barnavdelningen finns tre rymliga sovrum och ett allrum med plats för både lek och TV-hörna. Föräldrasovrummet har ett eget badrum och en praktisk klädkammare. Det generösa köket erbjuder gott om utrymme för både familjemiddagar och umgänge med vänner. Exteriören präglas av ett modernt pulpettak och liggande träpanel. Vardagsrummet har ett vackert fönsterparti som släpper in rikligt med ljus – och den som vill ha extra rymd kan välja till snedtak.

VISNING!
Varmt välkomna på tomtvisning den 21/9 kl. 17:00-17:30. När du erbjuds tillfälle att träffa oss på Ebad & Partners respektive Tommy Gillberg från Trivselhus som har ett mycket gott samarbete med Nordea.

Huset planeras vara inflyttningsklart 2026 (Sept). Movehome sköter hela processen, så att du kan fokusera på de roliga valen. Som köpare har du möjlighet att påverka både interiöra och exteriöra materialval för att sätta din personliga prägel på hemmet. Kommunalt vatten och avlopp är redan framdraget till tomtgränsen.

Området erbjuder närhet till både skog och natur, samt bekvämt avstånd till mataffär, förskola och skola. På våren och sommaren kan du enkelt ta cykeln till någon av de fina badstränderna längs kusten för svalkande dopp och härliga utflykter. Fastigheten ligger också nära Björlanda Kile, en av Sveriges största småbåtshamnar. Närmaste butik- och serviceområde finns vid det expanderade Skra Bro, där du även har goda bussförbindelser in till Göteborgs city på cirka 25 minuter. Volvo nås på endast 10 minuter.

Kostnaden tomt hus inkluderar totalentreprenad, markarbete samt estimerade anslutningsavgifter för el och VA. Observera att bilderna är exempelbilder och kan visa tillval som påverkar priset. Ebad & Partners förmedlar endast tomten. Entreprenadkontrakt skrivs med Movehome och anslutningsavgifter betalas direkt till respektive leverantör..

Vid nyproduktion utgår ingen fastighetsskatt i 15 år efter värdeåret, vilket ger en ekonomisk fördel. Ebad & Partners förmedlar endast tomten. Entreprenadkontrakt skrivs med Movehome och anslutningsavgifter betalas direkt till respektive leverantör. Under "dokument" finner du förättningskarta.

VISNING!
Varmt välkomna på tomtvisning den 6/11 kl. 16:00-16:30. När du erbjuds tillfälle att träffa oss på Ebad & Partners respektive Tommy Gillberg från Trivselhus som har ett mycket gott samarbete med Nordea.

Varmt välkommen att höra av dig till mäklaren eller att åka ut och titta på tomten på egen hand!

Fakta

Snabbfakta

Begärt pris
6 775 000 kr
Antal rum
7 rum och kök, varav 4 sovrum
Boarea
153 m²
Fast.beteckning
Nolvik 3:147
Areakälla
Areauppgifter enligt taxeringsinformationen
Tomtarea
934 m²

Om fastigheten

Byggnadstyp
1 planshus
Byggnadsår
2026
Fasad
Trä
Stomme
Trä
Fönster
3-glasfönster isoler
Bjälklag
Betong
Tak
Betongpannor
Grund
Platta på mark
Uppvärmning
Vattenburen golvvärme , frånluftsvärmepump
Vatten/avlopp
Kommunalt vatten och avlopp
Ventilation
Frånluft med återvinning
Område

Allmänt

Björlanda är ett vackert och lantligt område som präglas av grönskande natur, närhet till havet och vidsträckta ängar. För de med båtintresse finns Nordens största småbåtshamn i Björlanda Kile med upp till 2400 båtplatser. Zenithgården erbjuder aktiviteter av fotboll, innebandy och motionsspår. I området kring Gamla Lillebyvägen har ni dessutom Bronsålderssundet med fina promenadvägar i vacker natur. Önskar ni färska frallor till frukosten eller en fikapaus finns Mjöviks Bageri & Gårdsbutik i området. Björlanda är även ett expansivt område där ett nytt centrum är på väg att växa fram runt Skra Bro med bland annat planer på ett resecentrum och bebyggelse av varierande bostäder. Idag finns där en matbutik, fiskaffär och pizzeria.

Kommunikation

Buss 22: Kippholmen - Hjalmar Brantingsplatsen Buss 36: Säve Station - Skra Bro - Hjalmar Brantingsplatsen Svart Express: Amhult - City - Vallhamra

Närservice

Förskolan Björlandaskolan
Förskolan Björlanda Strand 5
Förskolan Lilla Trulsegården
Förskolan Emelie Lejmans väg 5
Förskola Nolviksvägen 40 Björlandaskolan åk F-6 Trulsegårdsskolan åk 7-9 Lilla Trulsegårdsskolan åk F-3

Ansvarig mäklare

Pedram Ebad Fastighetsmäklare, Civilekonom 070-967 84 98 [email protected]

Boka visning | anmäl intresse